$289,000

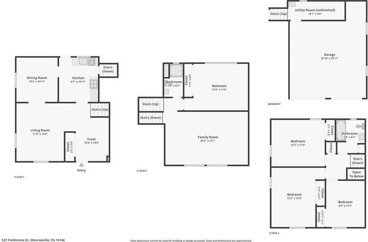
537 Fieldstone Dr, Monroeville, PA 15146

Active #1741128
MonroevilleGateway School DistrictAllegheny County
Single Family4 Beds2 Baths0.19 Acres
Welcome to this beautifully renovated 4-bedroom, 2-bath home offering an abundance of living space and modern upgrades throughout. Thoughtfully redesigned from top to bottom, this move-in-ready home features a brand-new roof, HVAC system, and hot water tank, providing peace of mind for years to come. The stunning new kitchen is the heart of the home, showcasing classic shaker-style cabinetry, granite countertops, and all-new appliances, perfect for both everyday living and entertaining. New laminate flooring and plush new carpeting flow seamlessly throughout the home, creating a warm and cohesive feel. Additional upgrades include new entry doors, garage doors with openers. Outside, enjoy a large, level rear yard"”ideal for outdoor gatherings, play, or simply relaxing. With a 2-car garage, generous interior space, and a prime location close to shopping, dining, parks, and major roadways, this renovated Garden City home is the perfect blend of comfort, convenience, and modern living.
Listed ByRiver Point Realty(412) 415 - 1115
General Information
Lot Size 0.1865
Taxes $4,014
Exterior Features
Construction Brick
Parking Attached Garage
Roof Asphalt
Style Split Entry
Interior Features
Floors Vinyl
Utilities
Cooling Central
Heating Gas
Sewage Public
Water Public

Map

Drive Time Estimator

Add locations to calculate your drive time to this property.

Mortgage Estimator

principal + interest
$0
$
price
% down
$
loan
%
years
+
taxes
$335
$
taxes/yr
+
insurance
$0
$
ins./yr
=
monthly cost
$0
Total Monthly Cost

For more details, use our mortgage comparison and amortization tool.

This is an estimate which can be affected by your lender's rates, PMI requirements and other factors. For the most accurate information, contact a mortgage representative.

Information Herein is Deemed Reliable but Not Guaranteed

Make This Your Home!
Listed ByRiver Point Realty(412) 415 - 1115

I'd like to:

Email This Property

Fill out the form below to email this property to a friend!

Login
Register
Log In To Use This Feature

Log in to access your saved properties, easily request more information, get customized mortgage calculations and more! Or register a new account.

Register to Use This Feature

Creating an account allows you to save properties, easily request more information, get customized mortgage calculations and more!

Forgot Password

Enter your email address in the box below and click "Reset Password" to send an email with instructions to reset your password.